Company-owned properties自社物件
- 価格
- 1,930万円万円
- 住所
- 神奈川県横須賀市田浦町1丁目1-5
- 交通
- JR横須賀線 田浦駅徒歩1分
- 面積
- 86.78㎡
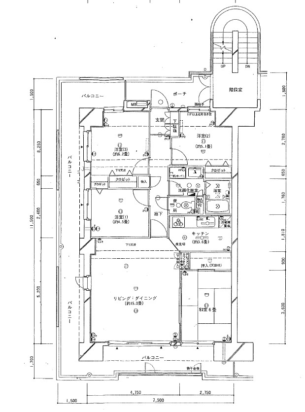
神奈川県横須賀市田浦町1丁目1-5 中古マンション
ファミール湘南田浦
専有面積:壁芯86.78㎡ 間取り:4LDK 所在階:5階 地上:14階建て
現況:空室 引渡:即時 土地権利:所有権
築年月:1990年3月 構造:RC造
月額管理費:13,600円 月額修繕積立金:10,860円※管理費・修繕積立金は変動する可能性があります。
管理方式:全部委託 管理組合:有
現況渡し ※リフォーム必須
※駐車場の空き状況は随時変動します。事前にご確認ください。
販売時期:令和7年10月~
