Company-owned properties自社物件
- 価格
- 1980(税込)万円
- 住所
- 大阪府東大阪市上小阪3丁目
- 交通
- 近鉄大阪線長瀬駅15分
- 面積
- 公簿 46.09㎡ 13.94坪
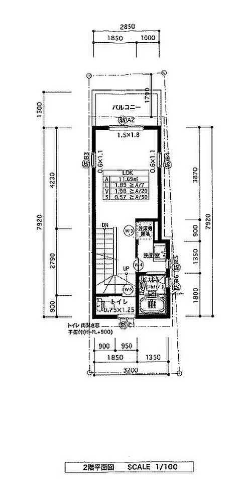
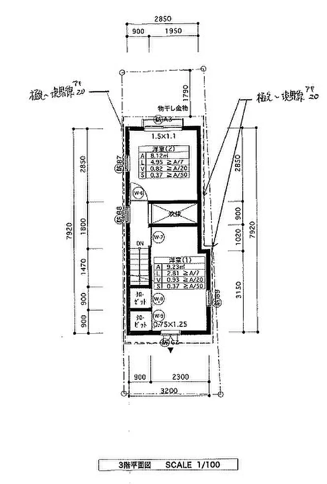
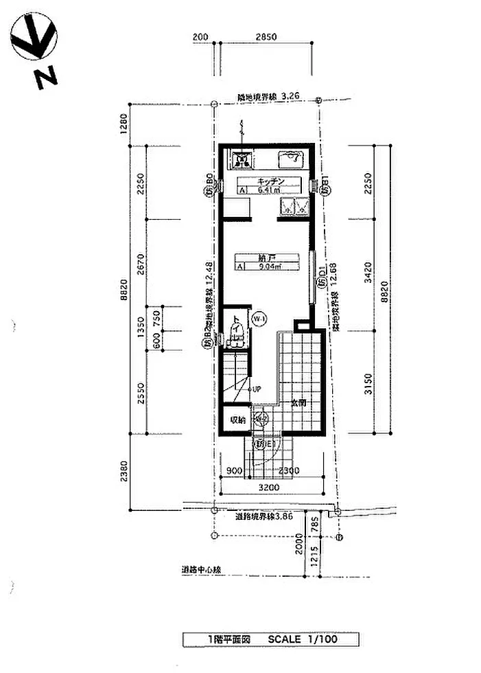
大阪府東大阪市上小阪3丁目 中古戸建
現況:居住中
種類:居宅
構造:木造ストレート葺3階建(床面積:1階:26.23㎡ 2階:23.67㎡ 3階:21.91㎡
合計71.81㎡)
地目:宅地 区域区分:都市計画区域 市街化区域 準防火地域
用途地域:第二種住居地域 建ぺい率・容積率:60%・200%
接道状況:北側 幅員4m 接道3.6m セットバック済み
法令上の制限:近畿圏の近郊整備区域及び都市開発区域の整備及び開発に関する法律
設備:上水道引込有 下水引込有 ガス引込有 電気有
引渡し時期:相談 取引形態:専属専任
◆上小阪小学校区◆上小阪中学校区
販売時期:令和7年10月~
